
Listen puppies, Your Mama has Your Mama's Momma up in our house for the weekend and we got the Sister Cooter coming over for a dinner of roasted chicken and root vegetables so we're slim on time and energy. However, in an effort to keep your real estate appetites whetted we figured we'd toss up a little bit o' floor plan porn to get you through the Sunday afternoon blues.We don't know who owns this 13-room triplex penthouse in New York City that sits atop a fine but second tier pre-war Park Avenue building. The building, erected in 1927, has an somewhat over-articulated facade with consistent fenestration, rope quoins and a fancy cornice all of which are somewhat marred by the myriad of air-conditioners sticking out of many of the windows. While this is far from unusual in even some of the best buildings in New York, it does take (more than) a little something away from the elegance of the exterior. Anyoo, the 14 story building, which has only about 35 apartments, offers full time doormen requires 50% cash down payment.
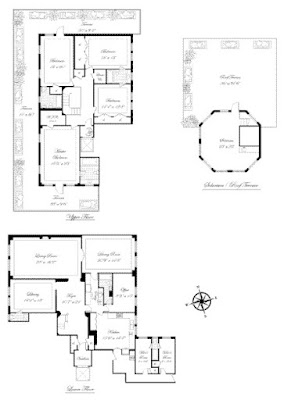
The triplex penthouse, listed at $18,500,000 with monthly fees of $11,387, includes a well conceived floor plan with 4 family bedrooms and 4.5 poopers. There are also, according to the floor plan, two cell-sized staff rooms tucked up behind the kitchen that share a single terliting and bathing facility.
The main floor has private elevator vestibule, a coupe of closets for guests' coats, a large but not over-eager foyer, formal living room with fireplace, dining room and a library/den where–a bit awkwardly–the powder pooper is located.
The services quarters consist of a butler's panty that connects the dining room to the kitchen, a reasonably sized eat-in affair, laundry facilities, the two aforementioned cell-sized staff rooms, and an office with attached pooper.
The upper level has four bedrooms, well separated for privacy. The two bedrooms that do not open to the thickly planted terrace share one terliting facility, a third has terrace access and a pooper of its own and the master bedroom includes a walk in closet and an adequate but hardly over-sized bathroom. The children will note that the apartment has what our friend Hot Chocolate calls PPP. That's Proper Pooper Placement. Each of the bathrooms–besides the one stranded in the center of the apartment in the downstairs office–has a window for proper ventilation. How much do we love that?
The octagonal, top floor solarium, accessed by a spiral staircase hidden behind a door on the second floor landing, has a kitchen(ette), 270-degree views and access to a gigantic roof terrace with dramatic views up and down Park Avenue.
We're not thrilled that access to the wrap terrace on the second level is only through the bedrooms, and we're less than pleased that the only way to get up into the tower room is via a far from elegant spiral staircase and, of course, our dear but demanding housegurl Svetlana would insist we combine the two punishingly small staff rooms into one room. We'd also prefer the powder pooper be located in a less intimate location but, c'est la vie.
It ain't perfect, puppies, but–while Your Mama wouldn't dream of living up on Park Avenue even if we could pay out eighteen million for a triplex–as far as these ol' pre-war Park Avenue penthouses go, it's pretty damn good.
Now, off we go to cut up a rutabaga and, since both Your Mama and Your Mama's Momma are both thirsty, mix up an ice cold pitcher of gin and tonics. We suggest you do the same.
No comments:
Post a Comment