SELLER: Vincent Gallo
LOCATION: Los Angeles, CA
PRICE: $2,599,000
SIZE: 4,300 square feet, 2 bedrooms, 2.5 bathrooms
YOUR MAMAS NOTES: Last night while watching those designing dervishes on Project Runway run around and snatch (or pay for) the clothes off the backs and asses of regular folks roaming around Central Park minding their own damn bizness, we received a brief missive from amiga and informant Babbling Babette who let us know that wild-eyed indie film actor, artist, musician, avant garde self promoter, and somewhat freaky-creepy bon vivant Vincent Gallo (Buffalo 66, The Brown Bunny) hoisted a soaring penthouse loft in a nitty-gritty industrial area east of downtown Los Angeles, CA on the market with an asking price of $2,599,000. The penthouse has been on and off the market since February 2011.
Quixotic, exotic and erotic-minded Mister Gallo, a man who makes himself available through his website "to fulfill the wish, dream, or fantasy of any naturally born female" for a fee of $50,000 plus expenses per night (and to "couples of the lesbian persuasion" at $100,000 per night), purchased the the 4-floor penthouse in October 2009 for $2,340,000.
Despite that wacky (if oddly gripping) photo studio tableau with the naked male mannequin torso it was clear at first glance that Staging Lady in a Pink Toyota had been all up in there where her Wand of Decorative Generica. And indeed, according to a well-positioned little birdie, Mister Gallo never inhabited the 2 bedroom and 2.5 building topper, which had previously been leased to Nic Cage, and the furniture does not belong to him. Mister Gallo, we understand, has much less conventional (and far more interesting) taste in comestibles and day-core.
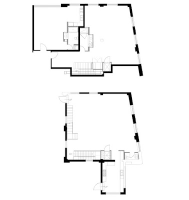
The main entrance to the penthouse, as seen in the above floor plan (lowest level on top), is on the lowest level where wide entrance hall opens into giant, window lined flexi-space suitable for use as a work/office space, art studio, indoor roller rink, Pilates studio or any just about other purpose a person could think of. It could also very easily be carved up into two decent-sized bedrooms with a shared hall bathroom. Experienced and eagle-eyed floor plan will note—and the lazy and the infirm with appreciate—the penthouse conveniently offers residents and guests a physical exertion saving private elevator that serves all four floors of the penthouse.
The first flight of stairs, a rather prosaic affair compared to the cacophony of floating M.C. Escher-esque staircases that wrap around and cut across the soaring upper levels, leads up to the main living/dining area where over-sized copper-framed windows with long city views punctuate two walls of the schoolyard-scaled room. Both the living/dining room and the adjacent separate kitchen open to an unusually ample if not entirely private wrap around terrace, part of which listing photos shows gussied up as an outdoor movie theater, a fun idea that we imagine might easily annoy the neighbors.
A momentary elevator ride or a long cantilevered flight of floating stairs brings us to the lofted master suite, a sprawling balcony that hangs over the primary living space below. The spacious room has lots of romance and drama but it does not offer so much as a lick of privacy, not even in the attached bathroom where a clear glass panel is all that divides the bedroom area from the shower. This set up is absolutely fine if you don't have children or house guests who could probably hear every whisper and creak in the bedroom from below not to mention would need to traipse through the bedroom to access the stairs that climb up to the roof top terrace. Of course, all the domestic traffic could just take the elevator up to the roof terrace, but still.... Call Your Mama a secretish prude if you like, but we just prefer more rather than less privacy when it comes to the boo-dwar.
Anyhoo, an all-glass pavilion on the roof opens to a large square terrace with all but unobstructed 360-degree views. Mister Gallo, his nice, gay or lady decorator or Staging Lady in a Pink Toyota furnished the roof terrace with a comfy-looking super-sized sectional sofa with nearly two dozen pillows but nary an umbrella in sight to keep the fair-skinned and sun averse from baking like potatoes in the searing southern California sunshine.
We do not, of course, know a cow teat from a tit mouse but an unscientific perusal of public property records suggest to Your Mama that Mister Gallo may (or may not) have had some sort of working relationship with the developer of the Biscuit Company Lofts, a direct hand in developing the downtown building, and/or an uncontrollable real estate urge to invest in the project. Our interpretation of the property records show Mister Gallo has owned a total of six units in the Biscuit Company Lofts complex as well as a lofty 1 bedroom and 1 bathroom condo in the building across the street he bought in February 2009 for $350,000. In addition to the for sale quadruplex penthouse that now encompasses and an adjacent 626 square foot unit on the seventh floor he bought separately from but at the same time as the penthouse for $300,000 Mister Gallo owned a ground floor space he sold for $510,000 to musician Eric Erlandson, co-founder of Courtney Love's old band Hole, a fifth floor unit bought in October 2008 for $280,000 and sold two months later for the exact same price, a second fifth floor unit bought in April 2007 for $675,000 and sold at a substantial loss in February 2011 for $380,000 and, finally, a 2,926 square foot seventh floor duplex spread he sold in July 2010 for $1,300,000.
Mister Gallo has in the past also owned a wide variety of architecturally significant homes and apartments on both the east and west coasts including a couple condos at the star-studded Sierra Towers complex in West Hollywood (one he sold to Cher!), the soo-blime John Lautner-designed Wolff House tucked dramatically into the hills just above the Sunset Strip, and at least one condo in Richard Meier's exhibitionist-friendly (and celebrity-stocked) green glass and white steel towers that lord over the busy West Side Highway in New York City's far West Village and have dead on views up and down the Hudson and across to New Jersey.
listing photos: Keller Williams / Hollywood Hills
floor plan: Biscuit Company Lofts






No comments:
Post a Comment